澳洲幸运5

今天是
关怀版     无障碍     网站支持IPV6

澳洲幸运5(中国)开奖记录查询站 自然资源局国有土地划拨用地批前公示

来源:本网    发布日期:2024-07-04

     一、地块基本情况

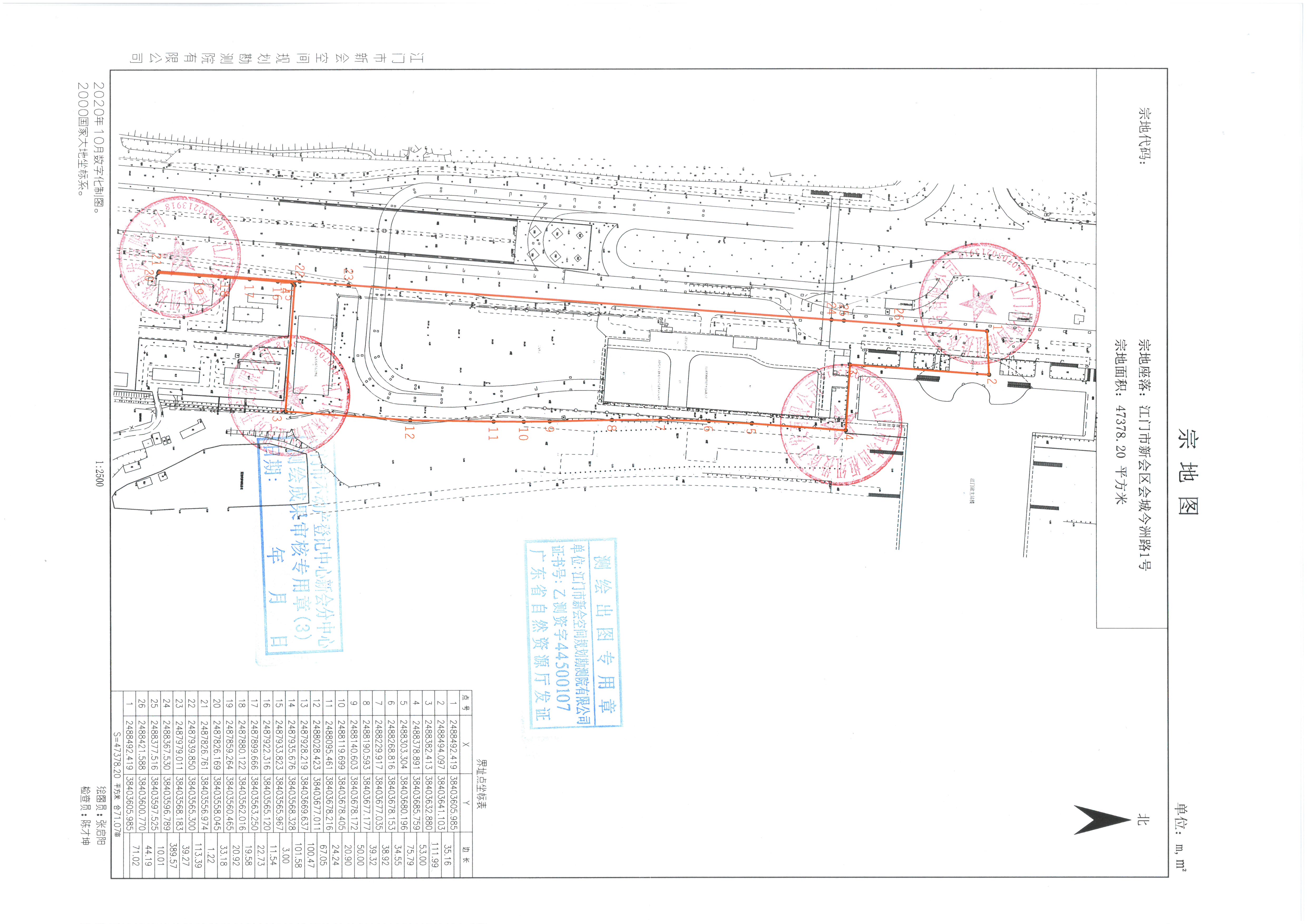
地块编号

HB2024-018

地块位置

澳洲幸运5(中国)开奖记录查询站 会城今洲路1号

土地用途

交通场站用地

土地面积(公顷)

4.789186

项目名称

珠西综合交通枢纽江门站配套设施工程项目

用地单位

江门市珠西枢纽投资开发有限公司

备注:


     二、公示期:2024年7月4日至2024年7月14日

     三、意见反馈方式

     在公示时限内,任何单位、组织和个人对本公示所列内容有异议的,请以书面材料形式向我局反映。公示期满后,无异议或虽有异议但经审查没有发现存在违反法律法规行为的,我局将依法报有批准权限的人民政府审批。

     四、联系方式
联系单位:澳洲幸运5(中国)开奖记录查询站 自然资源局

     单位地址:澳洲幸运5(中国)开奖记录查询站 会城街道中心南路17号

     邮政编码:529100

     联系电话:0750-6322023

     联 系 人:邓小姐



澳洲幸运5(中国)开奖记录查询站 自然资源局

2024年7月4日